office
Office Design Disasters
Avoid these nine blunders when designing your office.
JENNIFER KIRBY, SENIOR ASSOCIATE EDITOR
Irish writer James Joyce ("Ulysses," "A Portrait of the Artist as a Young Man") once said: "A man's errors are his portals of discovery." Here are nine "discoveries" your colleagues and an office designer made through office design.
1 Not involving staff
Your staff is in the trenches every day, so often times they know better than you about what office design is going to work. For this reason, designing your office without staff input is a huge mistake, says Barbara Wright, of Barbara Wright Design, a Portland-based optometric-office design and consulting company.
An example: "I've seen practices where the reception counter was far too deep, making staff members struggle to see above the reception desk to speak with patients and hand them any necessary forms," she says. "… Poor design choices can be detrimental to staff productivity."
2 Not planning for the future
Many offices quickly bust at the seams because the practitioner's initial design didn't accommodate for technological innovations, such as new diagnostic equipment or computers. The result: Their once organized and pristine-looking office soon appears cluttered.
"New technology provides the best and most up-to-date care to your patients, which translates to you being the best and most-up-to-date practitioner," says optometrist Mark Allen, of Vision Source of Texarkana, in Texarkana, Texas. (He designed his office almost two years ago.)
"A cluttered and disorganized-looking office — regardless of the fact that its appearance is due to the addition of new technology — can translate to patients that you're a cluttered and disorganized practitioner. So, you may actually lose patients in this case."
As a result, give a great deal of thought to space for technology when designing your practice. Yes, you'll most likely move your practice at some point, but if you give careful consideration to your office design now, you won't have to pack your bags for some time, which will save you a great deal of money and aggravation, Dr. Allen adds.
The two areas to keep in mind:
1. Equipment storage. Dr. Allen's office currently houses two rooms for testing: one for pre-exam testing, which includes an autorefractor, among other devices, and a special testing room, which houses a visual field test, among other more specialized equipment.
"In seeing the amount of equipment we've added to the special-testing room through the years and the difficulty both my staff and patients now have in navigating around these devices and each other, I really wish I'd given more thought to the number of special testing rooms when designing our offices," he says.
| Give a great deal of thought to space for technology when designing your practice, or your office could bust at the seems. |
Ms. Wright adds that you must also consider how each device works.
"Some types of equipment, such as a visual fields tester, require that the patient concentrate on it for a length of time. If placed in a room with other equipment that takes a short time, the visual fields tester can cause a back-up, which could frustrate patients," she says. "When every patient gets the same testing sequence, housing all that equipment in one room is efficient. Retinal photography is not usually done on every patient, so placing that equipment in a small, separate room or nook is a good idea."
Optometrist Mark Fisher, of Lifetime Eye Care, in Viera, Fla., suggests you also consider future merchandising technologies when designing your dispensary. (He completed his office design about five months ago.)
"… We left room on our display area for future computer applications, such as a program that displays frames, as I read about these helpful programs and knew they'd assist patients in frame selection," he says. "These dispensing aids also help measure the papillary distance and seg heights. This technology benefits both the patient and your practice, so if you don't leave room for these things, you're going to be disappointed."
So, how many rooms should you allot for both pre-exam testing and special testing?
"There is no one correct answer for this. The answer depends on a number of variables, such as how you plan to delegate and your patient population," says Ms. Wright. "The more testing you want to delegate to your staff, the more rooms you will need for equipment. If you specialize in low vision, for instance, you may want special testing equipment for those patients that the average practice wouldn't need."
2. Data port and electrical outlets. Be prepared for the latest technological offerings by installing plenty of computer networking outlets and regular outlets at the outset in those areas you've decided to store your current equipment.
"It's a mistake to not sit down and assess how much equipment you have and where you want to place it, as you need to get an idea as to how many computer data port and electrical outlets you currently need and may need down the road," says Ms. Wright. "Don't just arbitrarily place some outlets, and assume it'll work out. You always need more outlets than you think. When designing from scratch, I always ask the client how much equipment is going to go into each room, where, specifically, they want to place it, and then we always try to throw in a couple extra outlets in anticipation of the future."
Ms. Wright says she recently spoke with a former client, whom she recommended add extra outlets. "… He's been able to save money on later installation costs, as all he has to do is call someone to hook up the equipment and network it with his computer system."
Dr. Fisher adds that it's a huge hassle when offices don't have enough computer network cables installed.
"The end result is an overgrowth of wires," he says. "This not only makes a bad impression on patients, as the office looks messy, but can increase the risk of injury from tripping. Yes, you can go wireless, but I've found that the reliability of a wired network is better."
3 Installing only fluorescent lighting in exam rooms
Ms. Wright says to avoid installing only fluorescent lighting in your exam rooms, as you cannot dim them.
"Optometrists need lighting they can dim in the exam room to perform certain tests, such as the Snellen eye chart. And, practitioners also want the lights on, so they can talk with patients, take notes, etc.," she says. "A lot of times, we install track incandescent lighting — just one or two track lights on a dimmer switch. That way, the doctor can position those lights exactly and precisely where he wants them, and he can adjust the light levels."
Ms. Wright says she also recommends her clients install under-cabinet lights on upper cabinets, so they can see to write, type on a computer or use an instrument, while the rest of the room remains dark for the patient's benefit.
"The latest advancement in lighting is Light-emitting Diode (LED) light bulbs. You can dim LEDS, which means you may not need extra down lights — cans that are recessed into the ceiling — or track lights," she says.
Dr. Allen placed his dispensary (left) near the reception area of his practice to get patients excited about purchasing frames. Your optical should either be in or near the reception area or within the patient's sight line. Also, never leave the design of your optical until the last minute.
4 Using bland colors
You don't have to use circus colors, but you should use some color to make the office look integrated from the front to the back, says Ms. Wright. "This shows that you genuinely care about what people see," she says. "I don't understand how you can expect to have someone trust you with their vision, if you have no vision as far as the look of your office is concerned. Beige walls, carpeting and chairs will make your practice fall flat."
Every color scheme should have at least one accent color, which is richer and deeper than the main color, she says.
"For example, if you use light sage green as your main color, you would use burgundy for your accent color."
A specific place you should use color: your baseboards:
"Make your baseboards a very distinct contrasting color, so your low-vision or elderly visitors can distinguish where the floor ends and the wall starts," says Ms. Wright. "This will enable them to comfortably navigate through your office. If your base board, wall and floor are only a few shades different from each other, these patients are going to struggle, and they may think twice before returning to see you."
5 Orphaning your optical
Because your dispensary is a major profit center, it's essential you place it in an area where patients can actually see it, says Ms. Wright.
"The best way to get patients thinking about and excited for purchasing frames is to have your optical either in the reception area or within the patient's sight line," she says. "This enables them to browse while waiting to see you," she says.
Dr. Fisher said he chose to place his dispensary in the sight line of the patient, but to make it separate from the reception area.
"Obviously I wanted my patients to know that we dispense frames and ophthalmic lenses, but I also wanted to send the message that the retail aspect of my practice is secondary to patient care," he says.
Ms. Wright cautions: "Do not leave the design of your dispensary until the last minute, treating it like an orphan. Most practices realize 50% or more of their income from frame sales, so put just as much time and attention into the dispensary planning as you do in the clinic area."
6 Having your reception desk on the right or left side
If your reception desk isn't centrally located, traffic jams will ensue among you, your patients and staff, as you can only travel one way in and out of the exam areas, says Dr. Fisher. This may not only cause accidents, but the time it takes to maneuver around one another can really add up.
"With a circular flow, you bring patients into the exam areas in one direction, they go through the pre-testing area, enter the exam room and then go out the other end to the optical or to the contact-lens fitting section," he says. "A circular flow avoids congestion in the hallway, which, in turn, really improves practice efficiency."
Ms. Wright says you can also improve patient flow by completely separating staff traffic from patient traffic.
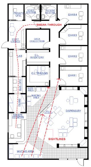
"If your reception- and business work areas are located side-by-side, you can create a "sneakthrough" staff traffic lane, so staff can move easily from the front desk through the main business core to reach the exam rooms in the back. This makes your main hallways more open for patients," she says. "Also, this allows crossed-trained staff to move quickly from the front office to the clinic area when they're needed. The doctors I've worked with especially appreciate being able to sneak through to staff and business areas without being exposed to patient traffic. Less staff movement through hallways creates a calm and professional atmosphere for patients."
7 No communication system
Dr. Allen regrets not installing a communication system from his exam rooms to the reception desk.
"… Because I didn't think of installing some type of lighting or paging system to ask for assistance, I have to open the door and ask for help," he says. "And, if everyone at the reception area is busy, I actually have to leave the room and find someone. It takes a minute or two to find someone who's free, but those minutes can add up. In addition, it breaks the flow between the patient and I."
8 Having the contact-lens area out in the open
When you make contact-lens selection and fitting part of your dispensary, you make your contact-lens patients feel as if they're on display, which makes them uncomfortable and will most likely have an impact on their ability to insert and remove their lenses. These patients may also elect to go elsewhere, as they desire privacy, explains Ms. Wright.
"In addition, the last thing you want is for people in your reception area, who are waiting to see you, to watch someone struggling to insert his contact lens," she says. "It's going to make you look incompetent, and it's going to discourage your other patients from inquiring about contact-lens wear."
Design your office to have a private nook off the hallway — watch your sight lines — so you can make this process comfortable for patients without having to take up a great deal of space, Ms. Wright says.
Dr. Allen adds, he wouldn't advise having the contact-lens area in the same area as the dispensary, as contact-lens areas typically become cluttered due to product boxes and solutions.
If your reception- and business work areas are side-by-side, create a "sneak-through" staff traffic lane, so staff can move easily from the front desk through the main business core to reach the exam rooms in the back, says Ms. Wright.
"What ends up happening is that you'll start to place some of this stuff on your dispensary counters, just to move it out of the way," he says. "This really overshadows your optical and makes it appear messy," he says. "In other words, patients may steer clear of your optical to avoid the chaos."
9 Thinking design is fast and easy
Dr. Fisher says he regrets not allotting enough time for the designer to design.
"I had come up with requirements for our office — things we thought we needed — and the designer came back with a plan. Well, I didn't like the plan as much as I thought I would, so I slightly modified it," he explains. "I assumed, 'okay, they know what we want, so they'll get it done fast." Obviously, that's not reality. The re-design delayed the entire opening of the office, which caused us to lose income."
There is no magic formula to predict how long a design should take. The future of your practice depends on the quality of thought that goes into your plans, says Ms. Wright.
"Our design process includes multiple revisions at every stage because that's the only way to get it right," she says. "It can take four to eight weeks just to develop the floor plan because of the fine-tuning we do to make sure we build in maximum productivity and sales."
Most, if not all, of the aforementioned mistakes occurred because of a lack of research and meticulous planning.
Remember: Office design requires an enormous financial investment. As a result, you want to be sure and sweat each and every detail.
"The rule is 'design slow, but build fast,'" says Ms. Wright. OM


